Descrição dos produtos
Light Crane Track refere -se a um sistema de trilhas projetado para guindastes leves, que é usada principalmente para apoiar e guiar o carrinho ou o boom do guindaste para o movimento horizontal. Existem muitas características da pista de guindaste leve. A faixa de guindaste leve adota design modular, estrutura compacta, pegada pequena e é adequada para lugares com espaço limitado
A capacidade de suporte de carga da pista de guindaste leve é moderada. Embora seja chamado de "luz", sua capacidade de carga é suficiente para atender às necessidades de elevação e manuseio da maioria dos bens leves.
No entanto, a flexibilidade e a eficiência dessa faixa de guindaste clara, o sistema de trilhas de guindaste leve é geralmente projetado como uma estrutura flexível ou rígida, que pode se mover horizontalmente ao longo da pista, facilitando operações de levantamento e manuseio em diferentes locais.
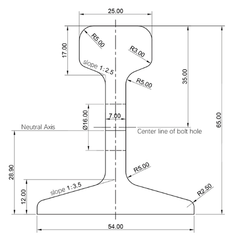
Rail de aço leve de 8 kg de 12 kg
| Trilho de aço claro | tamanho | Altura do trilho | Largura inferior | Largura da cabeça | Espessura da teia | Peso kg/m |
| 8 kg | 65 | 54 | 25 | 7 | 8.42 | |
| 12 kg | 69.85 | 69.85 | 38.1 | 7.54 | 12.2 |
Rail de aço leve de 8 kg de 12 kg






Por que nos escolher
Gnee Steel (Tianjin) Co., Ltd
Desde o seu estabelecimento em 2008, nossa empresa está comprometida em fornecer produtos ferroviários de alta qualidade e excelentes serviços para clientes em todo o mundo. Após anos de desenvolvimento, nos tornamos uma das principais empresas da indústria ferroviária global. Com forte força técnica e rica experiência do setor, conquistamos a confiança e o apoio de mais de 8, 000 clientes. Nosso negócio abrange mais de 160 países e o número de funcionários excedeu 200. Fornecemos a cada cliente soluções feitas sob medida para garantir seu sucesso na construção e operação global de ferrovias.

1. Padrões de alta qualidade
Nossos trilhos atendem aos padrões internacionais, garantindo que cada produto tenha excelente qualidade e desempenho.
2. Forte durabilidade
Os materiais avançados de liga são usados para garantir que os trilhos tenham super resistência ao desgaste e resistência à corrosão e tenham uma longa vida útil.
3. Controle de tamanho preciso
Nossos trilhos são produzidos através de processos precisos de produção para garantir que cada trilho tenha tamanho preciso, instalação fácil e custos de manutenção reduzidos.

Tag: GB padrão de 8 kg de 12 kg de guindaste, China GB Padrão de 8 kg de 12 kg de fabricantes de ferrovias, fornecedores, fábrica, American Standard Rail 115re, Padrões ferroviários do Crane, ISCR 70 Rail, ISCR Rail, trilhos para elevadores, Rail usado










